Bīdāmie logi - SLINOVA
PVC logi un durvis nodrošina augstu komforta līmeni un lielisku skaņas izolāciju. Kvalitatīva blīvējumu sistēma logu aplodā un vērtnē ne tikai rūpejas par skaņas izolāciju jūsu mājās, bet pasargās to no stipriem vējiem un lietus gāzēm. Lieliskā siltumizolācija neļaus gada aukstajos mēnešos siltajam gaisam aizplūst no mājas. Varat būt drošs, ka logi kalpos ilgi un to vizuālais izskats paliks nemainīgs arī pēc daudzu gadu lietošanas. Renovācija ar energoefektīvajiem PVC logiem uzlabos jūsu mājas siltumizolāciju, pat uz pusi samazinot mājas apkures izmaksas ilgtermiņā.
Mūsu piedāvājumā ir plaša profila palete un liela krāsu un formu izvēle. Papildu dažiem krāsu variantiem jūs varēsiet izvēlēties logu formu gandrīz neierobežoti. PVC logu dažādās montāžas iespējas ļaus piepildīt jebkuras klienta vēlmes gan jaunbūvēs, gan veicot mājas renovēšanu, sākot no standarta risinājumiem līdz pat ekskluzīviem risinājumiem tieši jūsu mājai.
Bīdāmie logi - SLINOVA
SLINOVA X rada harmoniju starp interjeru un ārpusi pateicoties tās smalkumam un modernajam dizainam.
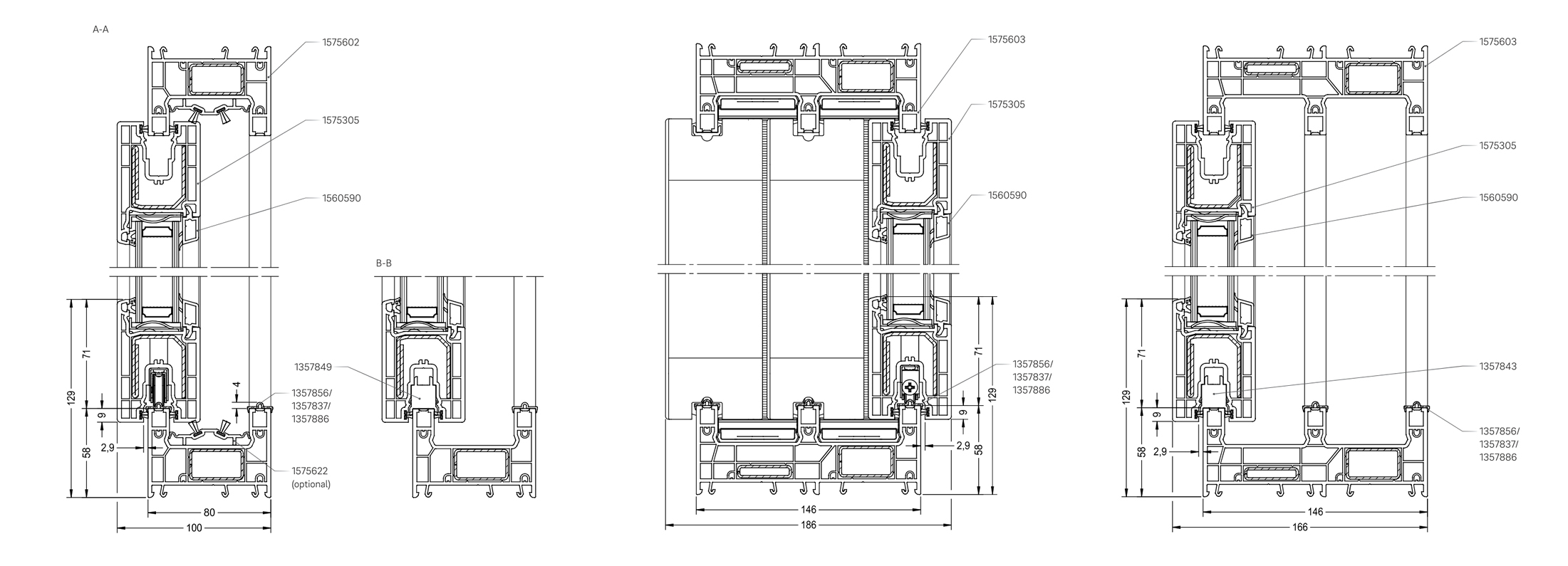
Pateicoties 32mm platajai vidus statnei (plānākā tirgū) - REHAU SLINOVA X piedāvā ļoti lielu stikloto laukumu, kurš nodrošina maksimālu dabisko apgaismojumu.
Realizēt to bija iespējams pateicoties RAUFIPRO X - kompozītmateriālam ar garantētu stabilitāti laika gaitā.
Pateicoties 32mm platajai vidus statnei (plānākā tirgū) - REHAU SLINOVA X piedāvā ļoti lielu stikloto laukumu, kurš nodrošina maksimālu dabisko apgaismojumu.
Realizēt to bija iespējams pateicoties RAUFIPRO X - kompozītmateriālam ar garantētu stabilitāti laika gaitā.
Maksimālie izmēri:
- Bīdāmas terases durvis baltā tonī: 4,0 x 2,6 m / 2,0 x 2,5 m
- Bīdāmas terases durvis krāsainā tonī: 4,0 x 2,5 m / 2,0 x 2,4 m
- Bīdāmas terases durvis baltā tonī: 4,0 x 2,6 m / 2,0 x 2,5 m
- Bīdāmas terases durvis krāsainā tonī: 4,0 x 2,5 m / 2,0 x 2,4 m
Droši sūtiet Jūsu Durvju un Logu izmērus mūsu menedžeriem uz un Saņemiet tāmi
Tehniskie dati:
| Iebūves dziļums | 8 cm vai 17,3 cm (2 vai 3 sliedes) |
| Kameras | 3 |
| Atdurblīvējumi | 2 |
| Stikla pakete | 24mm |
| Profila virsmas kvalitāte | HDF-tehnoloģija |
| Vidusdaļa | 3,2 cm plata! |
Profila tehniskais šķērsgriezums:

Sazinieties ar mūsu speciālistiem un saņemt Bezmaksas piedāvājumu par PVC logu izgatavošanu:
Strādājam ar "Rehau" (vācu kvalitāte) tehnaloģijām

Kontakti
MJ Logi piedāvā: PVC Logu un durvju izgatvošanu, uzstādīšanu un remontu.
Darba laiks:
Ražošana, pasūtījumu pieņemšana:
Pirmdien - Piektdien: 8.00-17.00
Steidzams logu remonts, stiklu maiņa:
24/7 bez brīvdienām
Saziņas forma
Droši sazinietes ar mums:







